欢迎光临玉田县双赢瓦业有限公司官网!
关于我们
网站地图
防腐防火隔热瓦及高强防火墙板地板
生产商
13930577544
400-603-1526
首页
镁质凝胶瓦
轻钢别墅专用瓦
LRC轻质隔墙板
板材
配套产品
墙体保温一体板
玻纤布
新闻资讯
相关案例
关于双赢
视频
您的位置:
主页
>
新闻资讯
>
行业动态
>
公司新闻
行业动态
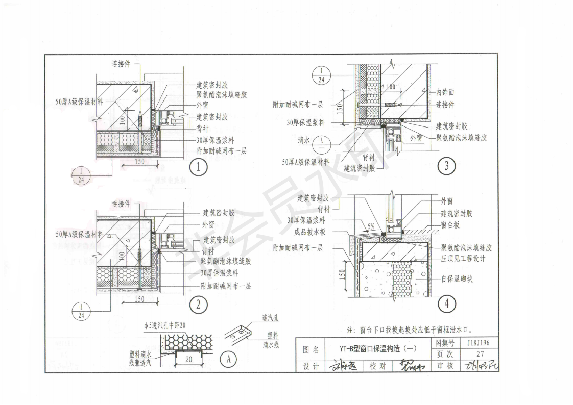
抗压加强复合保温板建筑构造-J18J196
来源:双赢瓦业
浏览:
发布日期:2022-06-09
上一篇:
玻纤镁质胶凝材料波瓦及脊瓦标准JC/T747-2021
下一篇:
铝镁锰合金屋面瓦保温吗?
“
推荐阅读
”
抗压加强复合保温板建筑构造J24J196…
铝镁锰合金屋面瓦保温吗?…
抗压加强复合保温板建筑构造-J18J196…
玻纤镁质胶凝材料波瓦及脊瓦标准JC/T747-2021…
怎样判断地板是否是环保木地板…
红星美凯龙与居然之家战略合作推动家居市场规…
环保板材和基础板材傻傻分不清楚?科普来啦!…
什么是保温免拆一体板????…
【本文标签】:
【责任编辑】:
双赢瓦业版权所有,转载请注明出处
推荐产品
960-7.5型 玻纤镁质凝胶防火
960-7.5型 玻纤镁质凝胶防火
1020-5型 玻纤镁质凝胶防火
1020-5型 玻纤镁质凝胶防火
1020-5型 玻纤镁质凝胶防火
1020-5型 玻纤镁质凝胶防火
相关新闻
抗压加强复合保温板建筑构造J24J196…
铝镁锰合金屋面瓦保温吗?…
抗压加强复合保温板建筑构造-J18J196…
玻纤镁质胶凝材料波瓦及脊瓦标准JC/T747-2021…
怎样判断地板是否是环保木地板…
红星美凯龙与居然之家战略合作推动家居市场规…
环保板材和基础板材傻傻分不清楚?科普来啦!…
什么是保温免拆一体板????…
冀公网安备 13022902000307号
手机二维码
返回顶部